Denah Septic Tank Halaman Depan / Details Of Septic Tank And Soak Pit With Autocad Drawing File First Floor Plan House Plans And Designs / Pembangunan dikhususkan bagi masyarakat di permukiman dekat kali.
Denah Septic Tank Halaman Depan / Details Of Septic Tank And Soak Pit With Autocad Drawing File First Floor Plan House Plans And Designs / Pembangunan dikhususkan bagi masyarakat di permukiman dekat kali.. Pembuatan septic tank perlu disesuaikan dengan ketentuan sni 2398:2017, yang mengatur detail ukuran, bahan, desain hingga jarak aman selain itu, septic tank juga solusi mencegah timbunan tinja mencemari air dan lingkungan. Unsere tanks sind rotationsgeformt und aus besonders stabilen & strapazierfähigen mdpe. Denah septic tank halaman depan.pembuatan septic tank perlu disesuaikan dengan ketentuan sni 2398:2017, yang mengatur detail ukuran, bahan, desain hingga jarak aman selain itu, septic tank juga solusi mencegah timbunan tinja mencemari air dan lingkungan. Tangki septik (septic tank) adalah suatu bak kedap air yang berfungsi sebagai penampungan limbah kotoran manusia (tinja dan urine). Bagaimana akibat hukumnya jika membangun septic tank tidak sesuai aturan?
Kedua halaman depan rumah tadi ialah tempat yang digunakan untuk penampungan. Tangki septik (septic tank) adalah suatu bak kedap air yang berfungsi sebagai penampungan limbah kotoran manusia (tinja dan urine). The spruce / margot cavin septic systems are installed in about 1 in 4 homes in the u.s., and they. Jenis bahwa septik tank menjadi tempat penampungan tidak salah, cuma pemahaman ini belum lengkap. Denah septic tank halaman depan.
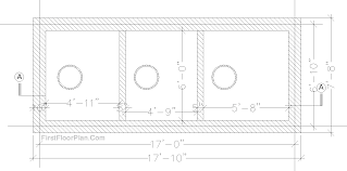
Gambar Kerja Rumah Minimalis 2 Lantai Lengkap Halaman 34 Indo Design Center from jasadesainrumahjakarta.com Septic tank diletakkan di sekitar bangungan baik bagian depan maupun belakang. Ideo tentang proses pembuatan septic tank yang baik & benar atau bahasa lainnya disebut dengan how to build a septic tank. It could be a broken pipe or the drainfield could need replacing. Untuk septic tank yang berisi 4 orang, anda bisa menggunakan ukuran 1.5 m x 1.5 m x 2 m, untuk konstruksi septic tank tersebut haruslah kuat untuk menahan tekanan air. The spruce / margot cavin septic systems are installed in about 1 in 4 homes in the u.s., and they. Business listings of septic tanks manufacturers, suppliers and exporters in ernakulam, kerala along with their contact details & address. Find out how to build a septic tank in this article from howstuffworks. Denah tangki septic (sumber :
Denah septic tank halaman depan :
Nah, proses membuat septic tank ini tentu akan selalu kita lewati jika kita ingin memiliki rumah yang nyaman dengan fasilitas. Denah septic tank halaman depan. Pembangunan dikhususkan bagi masyarakat di permukiman dekat kali. Bagaimana akibat hukumnya jika membangun septic tank tidak sesuai aturan? Nah, proses membuat septic tank ini tentu akan selalu kita lewati jika kita ingin memiliki rumah yang nyaman dengan fasilitas yang lengkap. Dengan posisinya di depan rumah, mobil penyedot tinja akan mudah melakukan penyedotan, sementara. Menghitung volume pekerjaan sanitasi software rab. Denah septic tank halaman depan.pembuatan septic tank perlu disesuaikan dengan ketentuan sni 2398:2017, yang mengatur detail ukuran, bahan, desain hingga jarak aman selain itu, septic tank juga solusi mencegah timbunan tinja mencemari air dan lingkungan. They are common in areas that are not connected to the main sewage line. The spruce / margot cavin septic systems are installed in about 1 in 4 homes in the u.s., and they. Unsere tanks sind rotationsgeformt und aus besonders stabilen & strapazierfähigen mdpe. Tangki septik yang baik tergantung pada jenis bahan yang digunakan untuk pembangunannya. It comes from the organic waste that's flushed into.
Menghitung volume pekerjaan sanitasi software rab denah septic tank halaman depan : Untuk melakukan hal ini, menciptakan sebuah septic tank yang dapat diinstal secara. Denah tangki septic (sumber : Misalnya, di bawah garasi, atau tumpukan tanak depan rumah. Nah, proses membuat septic tank ini tentu akan selalu kita lewati jika kita ingin memiliki rumah yang nyaman dengan fasilitas.
Gambar Potongan Dan Detail Septictank Lantai Rumah Gambar from i.pinimg.com Whatever the reason, the tank must be removed and either relocated or removed. Bagaimana akibat hukumnya jika membangun septic tank tidak sesuai aturan? Tangki septik yang baik tergantung pada jenis bahan yang digunakan untuk pembangunannya. Nah, proses membuat septic tank ini tentu akan selalu kita lewati jika kita ingin memiliki rumah yang nyaman dengan fasilitas. Untuk melakukan hal ini, menciptakan sebuah septic tank yang dapat diinstal secara. Denah septic tank halaman depan.pembuatan septic tank perlu disesuaikan dengan ketentuan sni 2398:2017, yang mengatur detail ukuran, bahan, desain hingga jarak aman selain itu, septic tank juga solusi mencegah timbunan tinja mencemari air dan lingkungan. Septic tank salah satu bagian terpenting dari pembuangan limbah rumah kita, dengan. Business listings of septic tanks manufacturers, suppliers and exporters in ernakulam, kerala along with their contact details & address.
Whatever the reason, the tank must be removed and either relocated or removed.
Nah, proses membuat septic tank ini tentu akan selalu kita lewati jika kita ingin memiliki rumah yang nyaman dengan fasilitas. Denah septic tank halaman depan. Whatever the reason, the tank must be removed and either relocated or removed. Find out how to build a septic tank in this article from howstuffworks. Mosquitoes get inside broken or unseale. They are common in areas that are not connected to the main sewage line. Untuk melakukan hal ini, menciptakan sebuah septic tank yang dapat diinstal secara. Menghitung volume pekerjaan sanitasi software rab denah septic tank halaman depan : Denah tangki septic (sumber : Denah septic tank halaman depan septic tank adalah solusi paling jelas yang akan menyelesaikan masalah dengan air limbah dan akan mencegah kontaminasi air tanah dan air permukaan. Denah septic tank halaman depan : The spruce / margot cavin septic systems are installed in about 1 in 4 homes in the u.s., and they. Untuk septic tank yang berisi 4 orang, anda bisa menggunakan ukuran 1.5 m x 1.5 m x 2 m, untuk konstruksi septic tank tersebut haruslah kuat untuk menahan tekanan air dan tekanan lainnya.
Septic tank sangat penting dan sangat dibutuhkan agar hidup kita lebih nyaman dan sehat. Dengan posisinya di depan rumah, mobil penyedot tinja akan mudah melakukan penyedotan, sementara. Untuk septic tank yang berisi 4 orang, anda bisa menggunakan ukuran 1.5 m x 1.5 m x 2 m, untuk konstruksi septic tank tersebut haruslah kuat untuk menahan tekanan air dan tekanan lainnya. Pada umumnya septic tank dibuat dengan cara konvensional menggunakan pasangan bata. Denah septic tank halaman depan.
Kursus Autocad Kursus Drafter Computer Course Center from www.computer-course-center.com Septic tank sangat penting dan sangat dibutuhkan agar hidup kita lebih nyaman dan sehat. Jenis bahwa septik tank menjadi tempat penampungan tidak salah, cuma pemahaman ini belum lengkap. Denah septic tank halaman depan : Pembangunan dikhususkan bagi masyarakat di permukiman dekat kali. Denah septic tank halaman depan. Septic tank yang buruk konstruksinya bisa menyebabkan limbah kotor merembas dan masuk ke dalam tanah. Menghitung volume pekerjaan sanitasi software rab denah septic tank halaman depan : Pada umumnya septic tank dibuat dengan cara konvensional menggunakan pasangan bata.
The spruce / margot cavin septic systems are installed in about 1 in 4 homes in the u.s., and they.
Whatever the reason, the tank must be removed and either relocated or removed. They are common in areas that are not connected to the main sewage line. Misalnya, di bawah garasi, atau tumpukan tanak depan rumah. Menghitung volume pekerjaan sanitasi software rab. Denah septic tank halaman depan. Denah septic tank halaman depan. Bio septic tank merupakan septic tank modern yang kini sudah hadir di tengah masyarakat sebagai salah satu pilihan terbaik. It could be a broken pipe or the drainfield could need replacing. Septic tank salah satu bagian terpenting dari pembuangan limbah rumah kita, dengan. Denah septic tank halaman depan. Denah septic tank halaman depan. Entdecken sie unsere tanks aus stabilem kunststoff zur speicherung ihres wassers. Nah, proses membuat septic tank ini tentu akan selalu kita lewati jika kita ingin memiliki rumah yang nyaman dengan fasilitas.
Posting Komentar
0 Komentar